Situation and Description
Occupying a fantastic corner position in the popular and busy Torbay Road linking the prime shopping of Victoria Street to the Beach.
Torbay Road is renowned for its wide variety of complimentary businesses serving the many visitors holidaying in the town as well as the residents all year around
Since being purchased in 2022 the vendors have only traded on a limited basis initially and has been closed for some time. The premises are now being sold due to other business interests monopolising their time.
However a program of refurbishment has taken place both of the physical property and the trading inventory including a replacement 4 bin Preston Thomas range. A full inventory will be available at contract stage.
The apartment has had a complete makeover whilst the public trading (restaurant) areas do require upgrading and thus offers opportunity to personalise the space.
Accommodation
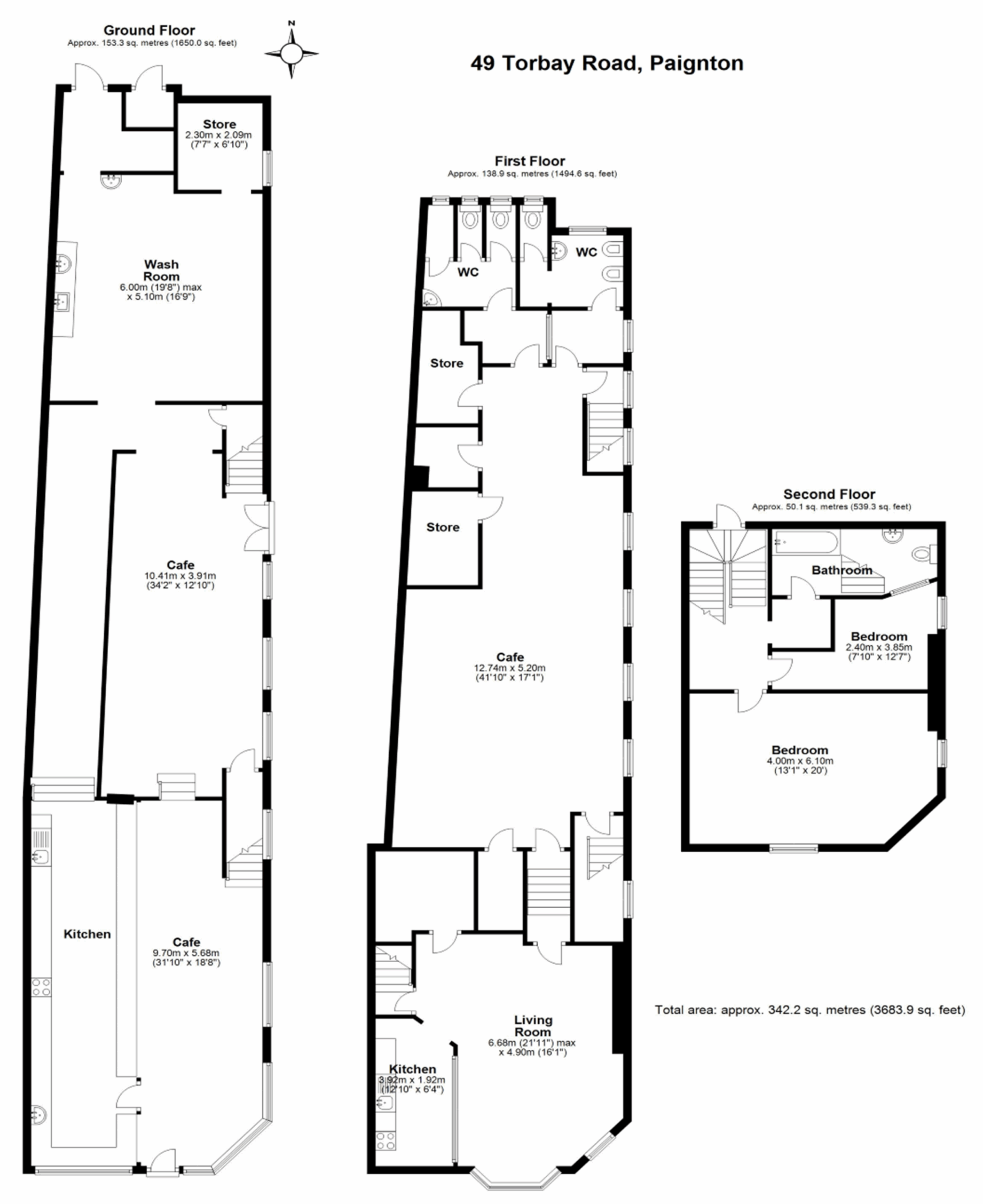
Please see the attached floor plans for layout.
The very large bedroom on the top floor can easily be split if required and is already wired to accept the division.
The restaurant areas over ground and first floor offer numerous covers or other complimentary businesses.
Business
No trading figures are available.
Proposal
Offers are invited for the Freehold Interest with a guide price of £475,000.
The vendors will not consider leasing .
Rateable Value £14250
EPC
Rated D
Council Tax
Band B
VAT
All prices are exclusive of VAT where chargeable.
Legal Costs
Each party to be responsible for their own legal costs incurred.
Viewing
Strictly by prior appointment.
Please contact Nick Wheeldon MRICS
Tel: 01803 403060
Email: [email protected]













