Location & Description
Occupying a prime location within this extremely popular pedestrianised retail precinct which services the favoured residential suburb of St Marychurch, approximately 2 miles from Torquay town centre and harbour.
This spacious retail unit also has the added benefit of qualifying for small business relief (subject to conditions) thus meaning no business rates to pay for qualifying tenants.
Nearby retailers include Boots, Coop, Sainsburys Local, as well as many established local traders and service providers
The shop is suitable for a variety of trades and a new lease from the 31st January 2026 is available following the end of the current lease but possibly earlier by arrangement and suitable relocation for current business found.
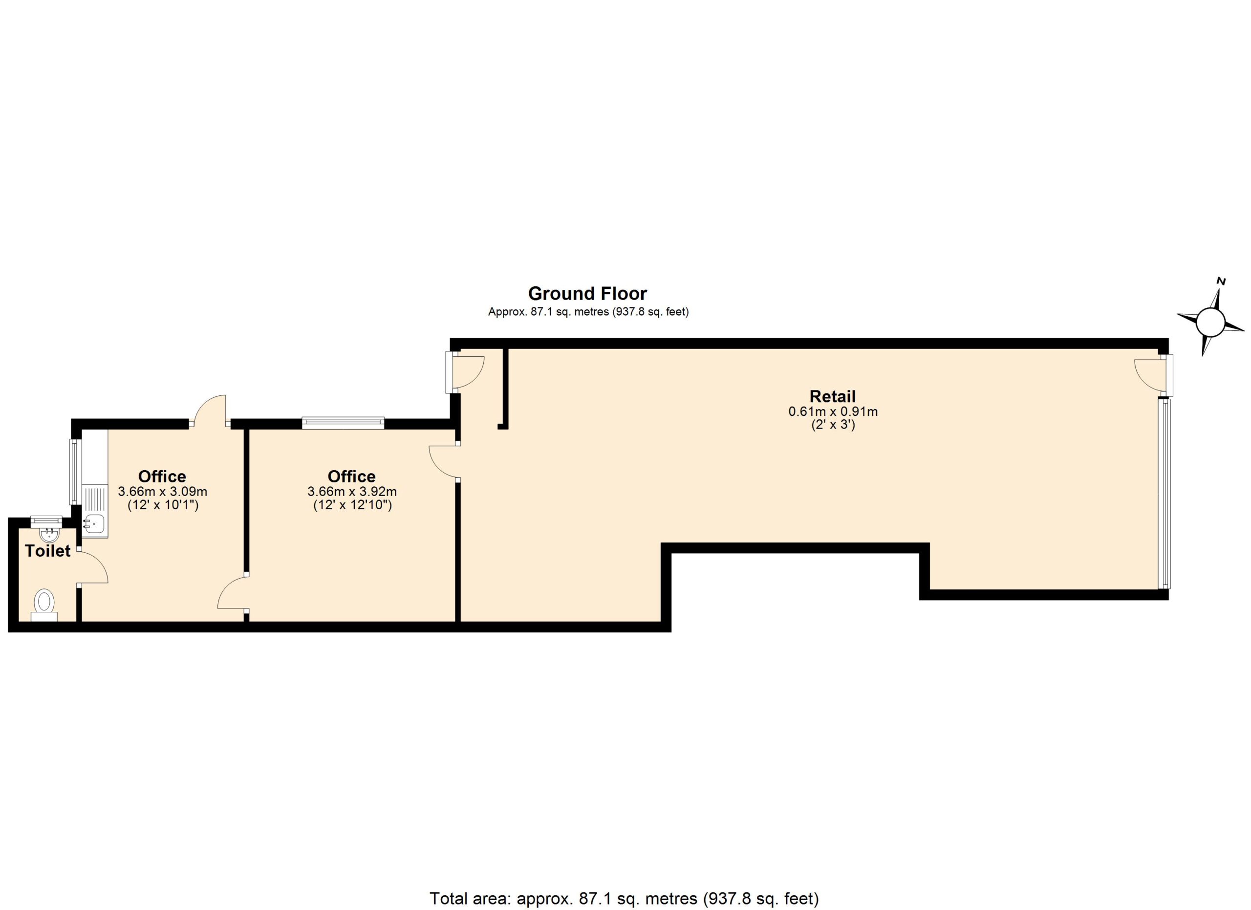
Accommodation
Shop frontage 5.03m (16ʹ6”)
Shop depth 13.64m (44ʹ9”)
Rear stock room 3.66m x 3.96m (12ʹ x 13ʹ)
Kitchen/store 3.05m x 3.37m (10ʹ x 12ʹ)
Total Area : 84.8m² (913 sq ft)
Legal Costs
Each party to be responsible for their own legal costs incurred.
Services
Mains water and electricity connected.
EPC
Band C
Lease
New FRI lease available length negotiable. Rent £15,000p.a.
Rateable Value
RV: £12,000(N.B. small business relief will apply to qualifying businesses)
VAT
All figures quoted are exclusive of VAT whether chargeable or not. Interested parties are recommended to establish VAT implications before entering into any agreement.
Viewing
By prior appointment with WAYCOTTS on 01803 403060.









